175平现代简约四室横厅大平层

▲ 项目面积175平,项目坐标:湖南·长沙,设计师说在前面:本案原始户型存在空间布局太板正、功能分区与业主家庭成员需求冲突等问题。
经改造,拆除客厅与卧室及阳台的非承重墙,使空间更开阔通透,采光与通风显著提升,打造出集休闲与观景于一体的多功能阳台。同时,调整厨房与餐厅的隔断,增强餐厨互动性与空间连贯性,满足业主日常社交需求。利用餐边柜角落增设收纳柜,完善收纳冰箱位置,提升空间利用率,确保各区域动静分区明确,为业主营造舒适、便捷、个性化的居住环境。

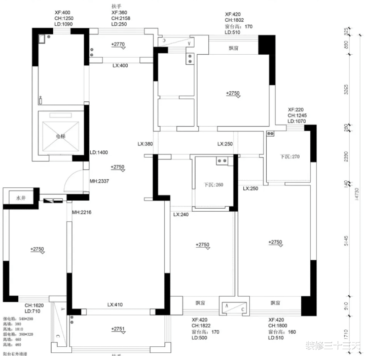
▲ 原始结构图

▲ 平面布置图

▲ 入户正对面设计一组玄关柜,柜体与端景造型相结合,好看又实用,底部还暗藏了感应灯带,晚上回家自动亮起,氛围感拉满

▲ 客厅打通相邻的卧室和阳台,做成一个大横厅,大大提升通透性与互动性,地面通铺浅灰色柔光瓷砖,不仅美观大气,而且容易清洁打理

▲ 选择黑色皮沙发搭配岩板茶几

▲ 电视墙采用木饰面与木质格栅相结合,简约中透露着精致,右侧还隐藏了次卧入口,保证视觉整体性

▲ 阳台一侧定制高柜补充收纳

▲ 阳台靠窗布置一把舒适的躺椅

▲ 沙发后面是茶室,一张厚重的实木茶桌置于中央,纹理天然质朴

▲ 背景打造一排收纳展示柜,同时与主卧隐形门形成一个整体,左侧多联动玻璃移门后是书房空间

▲ 茶室看向客厅视角

▲ 餐厅,天然大理石纹的餐桌搭配皮质餐椅,精致又舒适,椅子的弧度贴合人体曲线,久坐也不累

▲ 餐边柜采用了玻璃柜门与木质柜门结合,玻璃柜门内展示着珍藏的美酒与精致餐具,木质柜门收纳杂物,让餐厅井井有条。中间预留了开放格,放置咖啡机、水壶等小家电,方便日常使用。冰箱嵌入其中完美的融入到了一起,解放厨房操作空间

▲ 厨房U型布局,操作台面充足,洗、切、炒一气呵成,高低台设计符合人体工程学

▲ 次卫干湿分离,浴室柜下方预留了扫拖机器人基站,跟台盆共用上下水

▲ 将原有过道融合到儿童房,让空间得到充分利用,L型柜体兼具收纳与展示功能

▲ 主卧延续整屋格调,灯光设计上,采用了主灯、壁灯和灯带相结合的方式,床头背景墙采用浅米色木饰面搭配格栅,整体营造出宁静温馨的睡眠氛围

▲ 通往主卫的过道做满了衣柜,内部合理分区,挂衣区、叠放区、抽屉区满足各种收纳需求,柜门无把手设计,让立面更加整洁美观
热点资讯/a>
- 晶华新材实控人方9天减持套现1.25亿 3年2定增募6.6亿
- 想混得开?这4条铁律比拼命更重要
- 评论 | 盘一盘“十四五”里的大发展与小确幸①:“上新”提速
- 尴尬!周通找穆勒换球衣遭拒绝 再找凯恩又被拒绝
- 小红书拿下第三方支付牌照
